2
Izsoļu arhīvs

Pārdod nekustamo īpašumu – “Upītes”, Īvandes pagasts, Kuldīgas novads, 228.1 m²

Kuldīgas novada pašvaldība saskaņā ar Publiskas personas mantas atsavināšanas likumu pārdod elektroniskā izsolē ar augšupejošu ...
Izsoļu arhīvs

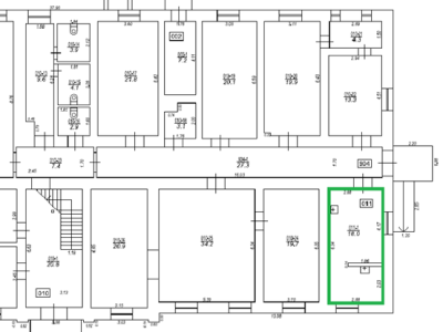
Izsolīs nomas tiesības uz neapdzīvojamo telpu nekustamajā īpašumā “Pagastmāja”, Snēpele, Snēpeles pagasts, Kuldīgas novads, 18 m²

Kuldīgas novada pašvaldība mutiskā izsolē izsolīs nomas tiesības uz neapdzīvojamo telpu nekustamajā īpašumā “Pagastmāja”, Snēpelē, Snēpeles pagastā, ...
Izsoļu arhīvs

Izsolīs zemesgabalu daļu nomas tiesību iegūšanai ielu tirdzniecības vietai Pils ielā, Kuldīga, Kuldīgas novads, 9 m²

Kuldīgas novada pašvaldība mutiskā izsolē ar augšupejošu soli izsolīs zemesgabalu daļu nomas tiesību iegūšanai ielu ...